NOTRE METIER
Contractant général d’aménagement et d’agencement de magasins, restaurants, hôtels, appartements et de tous types de locaux tant professionnels que privés.
Sa fonction est la réalisation de travaux de second œuvre, livré « clefs en main » .ATA intervient comme un généraliste, et fait éventuellement appelle à des spécialistes en cas de besoin.
L’entreprise travaille avec un panel de partenaires afin de réaliser les travaux en tout corps d’état. ATA coordonne l’ensemble des interventions suivant une planification bien déterminée en ayant des relations mutuellement bénéfiques avec ses sous-traitants et fournisseurs. ATA s’appuie également sur plusieurs ateliers de fabrication pour la réalisation de l’ensemble de son mobilier.
NOS MISSIONS
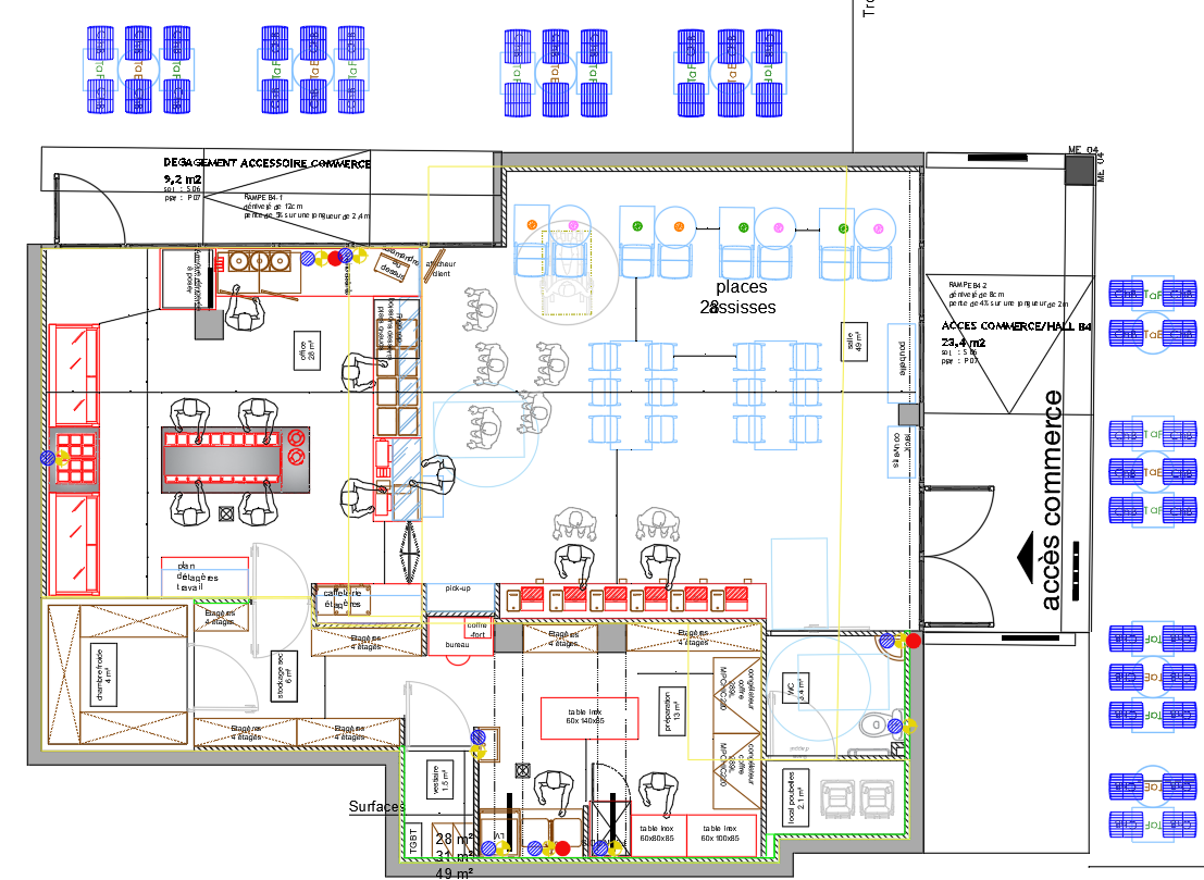
Conception de projets: Plans APS/APD/EXE/DCE/DOE
Devis: Devis descriptifs, consultations et chiffrages détaillés.
Démarches administratives: Déclaration de travaux, notice de sécurité, accessibilité handicapée, dépôts enseignes etc.
Réalisation de travaux: Planning, coordination, suivi de chantier, réception de travaux
NOTRE SECTEUR GÉOGRAPHIQUE
Grâce à notre réseau de compagnons et de fournisseurs, mis en place depuis plus de 20 ans, nous intervenons sur toute la France.
NOTRE SECTEUR D’ACTIVITÉ
- Appartements
- Boutiques
- Restaurants
- Bureaux
- Hôtels
- Équipements divers
Nous essayons de travailler avec des artisans locaux.





NOTRE PHILOSOPHIE
Après plus de 30 ans d’expérience et de nombreuses réalisations à Paris, Lyon, Lille, Marseille, Bordeaux, etc.. ATA s’installe à Auxerre le long des quais de l’Yonne.
Cette nouvelle étape sera j’espère riche de projets à réaliser, mais aussi pleine de belles rencontres et de moments à partager avec vous, mais aussi fédérer nos fournisseurs et partenaires tout au long de votre projet.
Osez de nouvelles expériences. Aménager et construire vos espaces de vie et de travail.
Sublimez vos intérieurs. Apprendre de nos expériences avec vous et nos compagnons. Voyager et inviter à de nouvelles rencontres. Inaugurer vos espaces.
Créons-nous des souvenirs.
Les particuliers
NOS CLIENTS
PROFESSIONNELS


